







Teklif Al
32 m² Tek Katlı Prefabrik Ev (EGE-101) – Kompakt 1+1 Yaşam
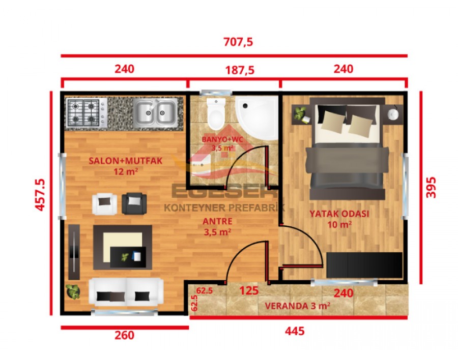
32 m² tek katlı prefabrik ev arayanlar için EGE-101, küçük alanda maksimum verim sağlayan 1+1 planıyla öne çıkar. Az metrekareye rağmen “sıkışık” his vermeyen bir yerleşim hedeflenmiştir. 4,57 m × 7,07 m genel ölçü, pek çok arsada hızlı ve sorunsuz yerleşim avantajı sunar.
Plan Dağılımı: Net Alan, Net Kullanım
EGE-101’in planı günlük yaşamı pratikleştirir:
Salon + Mutfak: 12 m² – Günün büyük kısmının geçtiği ana yaşam alanı
Yatak Odası: 10 m² – Tek kişi/çift kullanımı için ideal ölçü
Banyo/WC: 3,5 m² – Günlük kullanım için dengeli alan
Antre: 3,5 m² – Girişte düzen, ayakkabılık/portmanto gibi çözümlerle toparlayıcı alan
Veranda: 3 m² – Dışarıda oturma, kısa kahve molası, küçük masa–sandalye için keyifli bölüm
Bu dağılım sayesinde ev; tek yaşayanlar, yazlık düşünenler, bağ evi isteyenler veya kira getirisi amaçlayan yatırımcılar için mantıklı bir seçenek olur.
Ölçüler ve Teknik Kurgunun Mantığı
Toplam alan: 32 m²
Genel ölçü: 4,57 m × 7,07 m
Tek katlı form, kullanım ve temizlik açısından pratiktir; merdiven/kayıp alan olmadığı için m² verimli kullanılır.
Kullanım Senaryoları
EGE-101 özellikle şu ihtiyaçlarda “tam isabet” olur:
Arsa üzerine hızlı kurulum isteyenler
Yazlık / bağ evi arayanlar
Ofis / şantiye ofisi / danışma gibi amaçlara uygun kompakt çözüm isteyenler
Kiralama amaçlı küçük metrekare yatırım düşünenler
Teklif ve Kurulum Süreci
Kurulum süresi; arsa hazırlığı, zemin betonu ve saha şartlarına göre değişir. Bu nedenle en doğru planlama keşif/teklif aşamasında netleştirilir.
Teklif almak ve teslimat/kurulum detaylarını öğrenmek için bizimle iletişime geçebilirsiniz. Whatsapp 0531 886 60 90


